

Opis
Zastawki naścienne i kanałowe przeznaczone są do odcinania przepływu ścieków/wody w oczyszczalniach ścieków komunalnych i przemysłowych, w systemach melioracji wodnej oraz w systemach odwodnienia dróg i autostrad.
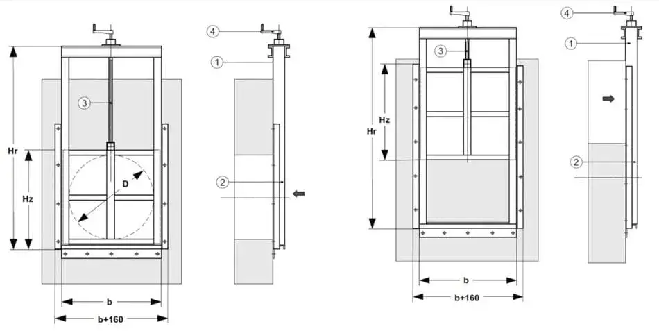
Cechy charakterystyczne zastawki:
- obustronne uszczelnienie zastawki kanałowej i naściennej,
- wykonanie zastawki – ze stali nierdzewnej,
- zastawka kanałowa przystosowana jest do montażu na wylotach z kanałów prostokątnych i okrągłych,
- wyposażona opcjonalnie w napęd elektryczny, teleskopowy trzpień przedłużający, kolumnę napędu, klucz do zasuw, skrzynkę uliczną lub inne.
Każda zastawka kanałowa i naścienna produkowana jest ściśle według wymagań Użytkownika/Zamawiającego i dostosowywana jest do lokalnych warunków na miejscu.

Zastawki kanałowe łatwe w montażu
Kompletując naszą ofertę, staraliśmy się, by każda zastawka kanałowa, którą sprzedajemy, była łatwa w montażu i bezproblemowa w użytkowaniu. Udało nam się to osiągnąć poprzez zastosowanie lekkiej konstrukcji. Dzięki temu instalacja zastawki nie jest już tak ciężkim zadaniem. Zmniejsza się ilość personelu, który musi brać w niej udział.
Zastawka kanałowa bez martwych stref
Nasze zastawki kanałowe wyróżniają się tym, że nie posiadają martwych stref. Oznacza to, że płynące zanieczyszczenia nie napotykają żadnych przeszkód, które mogłyby je zatrzymać i powodować blokowanie, a później całkowite zatkanie rury. Każda zastawka kanałowa posiada również wymienne uszczelki, co znacznie ułatwia ich eksploatację.
Precyzyjna regulacja przepływu dzięki zastawkom kanałowym naściennym
Armatura odcinająca służy nie tylko do zamknięcia awaryjnego, ale często do dławienia strugi cieczy. Oferowane przez nas zastawki kanałowe naścienne projektujemy tak, aby wytrzymały parcie medium z obu stron, gwarantując szczelność dzięki precyzyjnym uszczelnieniom. Montaż naścienny kotwami chemicznymi zapewnia stabilność konstrukcji nawet przy dużych gabarytach. Urządzenia te, wyposażone we wrzeciona niewznoszone, charakteryzują się wysoką kulturą pracy i odpornością na zarastanie, co jest kluczowe dla zastawek kanałowych do oczyszczalni ścieków.
Automatyzacja obsługi zastawki do instalacji wodno-kanalizacyjnych
Wymagania nowoczesnych obiektów wymuszają integrację z systemami nadrzędnymi, dlatego nasze zastawki do instalacji wodno-kanalizacyjnych są przystosowane do napędów elektrycznych i współpracy ze SCADA. Pozwala to na zdalne sterowanie kanałami w oparciu o odczyty z monitoringu poziomu ścieków. W systemach przeciwpowodziowych urządzenia te często uzupełniają klapy zwrotne, tworząc szczelną barierę przed cofką. Zautomatyzowane zastawki do odcinania przepływu ścieków są niezbędne tam, gdzie czas reakcji na zagrożenie musi być minimalny.
Co kształtuje cennik zastawek kanałowych?
W produkcji armatury przemysłowej gotowe rozwiązania są rzadkością, a każda realizacja wymaga indywidualnej kalkulacji. Cennik zastawek kanałowych jest ściśle uzależniony od wymiarów światła kanału oraz wysokości słupa cieczy, która determinuje wymaganą grubość płyty odcinającej. Znaczący wpływ na koszt ma także materiał – stal kwasoodporna AISI 316 jest droższa od standardowej nierdzewnej, ale niezbędna w agresywnym środowisku. Ostateczną wycenę modyfikuje również wybór napędu oraz długość kolumny sterującej.